Organisez vos évènements professionnels au Niort Parc Expo, en bord de Sèvre. Nous accueillons vos salons, congrès, séminaires, assemblées générales, réunions, ateliers ou réceptions dans un cadre fonctionnel et modulable.
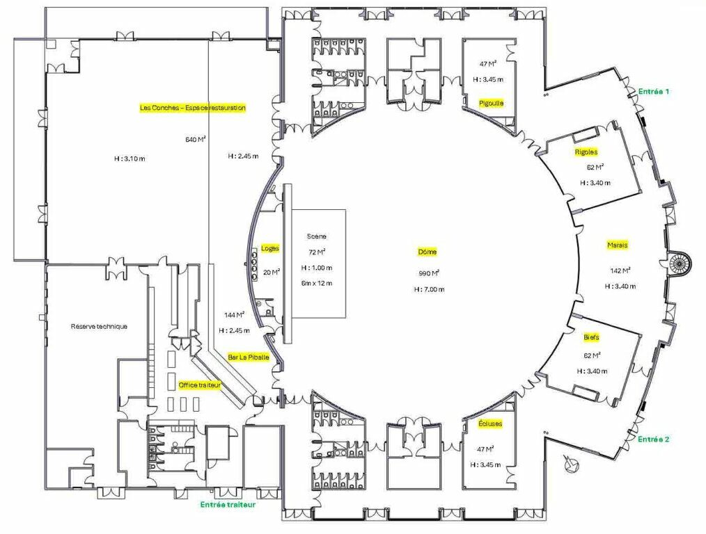
Le Dôme met à votre disposition 7 espaces pouvant recevoir jusqu’à 3 800 participants, tous équipés de solutions de vidéoprotection et de sonorisation performante.
Pour vos prestations de restauration ou vos évènements privatifs, le bar de la Piballe et la salle des Conches peuvent accueillir jusqu’à 1 200 personnes.

| Salles du Dôme | Surface | Conférence | Dîner assis | Debout |
|---|---|---|---|---|
| La salle du Dôme | 990 m² | 900 pers. | 620 pers. | 1900 pers. |
| Salle Marais | 142 m² | 150 pers. | 100 pers. | 300 pers. |
| Salles Biefs et Rigoles | 62 m² | 60 pers. | 40 pers. | 120 pers. |
| Salles de la Pigouille et Écluses | 47 m² | 25 pers. | 15 pers. | 50 pers. |
| Salles des Conches – Espace de restauration | 640 m² | 580 pers. | 380 pers. | 1 160 pers. |
| Bar de la Piballe | 144 m² | 90 pers. | 60 pers. | 180 pers. |
| Dôme + Marais + Biefs et Rigoles | 1 200 m² | 1 200 pers. | 800 pers. | 2 400 pers. |
| Privatisation | 1 900 m² | 1 900 pers. | 1 260 pers. | 3 800 pers. |
Modularité
Des espaces qui s’adaptent à vos formats.
Salon avec exposants, job dating, ateliers de team building, conférences ou réunions plénières : nous modulons la configuration de nos espaces pour répondre précisément à vos objectifs.
Selon vos besoins et les espaces concernés, nous mettons à votre disposition une offre complète de services complémentaires :
- Mobilier et aménagement des espaces (tables, chaises, scènes…)
- Équipements techniques performants (son, lumière, vidéo)
- Mise en relation avec des prestataires sélectionnés (restauration, hébergement…)
- Solutions logistiques adaptées à votre évènement
Les équipes So Space Évènements vous accompagnent également sur des prestations plus techniques, afin de concevoir un évènement qui vous ressemble.
Notre engagement : vous offrir un environnement performant et un accompagnement sur mesure, pour garantir la réussite de votre évènement.

Le Dôme en images













